Try ArcSite free for 14 days
Site plans are the cornerstone of most contracting and construction jobs. Residential contractors often rely on precise, detailed site plan drawings to define the scope of work and avoid any miscommunications.
Let's define what a site plan is, review different types of site plans, and explore the tools that are used to draw, share, and store them.
What is a site plan?
A site plan — sometimes referred to as a plot plan — is a drawing that depicts the existing and proposed conditions of a given area.
It is a document that functions as a readable map of a site, which includes its property lines and any features of the property.
A site plan will typically include locations of buildings and structures built on the property, as well as any property features such as driveways, pools, and gardens. They also include natural landmarks like trees or water sources.
How to create a site plan
Though your first thought may be to hire someone to complete a site plan for you, keep in mind the average architect or engineer will charge between $60 and $125 an hour to render a site plan.
With mobile drawing apps like ArcSite, it's easier than ever to create an accurate site plan.
The importance of an accurate site plan
If you’re planning to make any substantial changes to an existing property, you need a site plan.
For example, if a customer hires you to add a mother-in-law suite to an existing building, it would be helpful to have the site plan to help you design and lay out the structure. That way you can create a to-scale design that takes into account the already existing structure and any additional features of the property.
Site plans are great for any number of home improvement projects—anything from new landscaping to adding an inground pool to redoing a roof—and they’re important for accurate planning and design.
(Not to mention, a site plan is especially helpful if there’s any concern about property lines.)
Site plans are also useful for marketing. Real estate agents often use site plans to show an overview of the property they’re trying to sell. Site plans give the potential buyer a better idea of how the home or building is situated in relation to other features and landmarks on the property.
What’s the difference between a site plan and a floor plan?
You may be asking yourself: “I’ve got the floor plan, isn’t that enough?”
The short answer is: it depends on what type of work you’re doing.
A site plan is a comprehensive overhead view of everything within the property lines. This includes natural topography and any additional features such as driveways, walkways, gardens, patios, etc.
A site plan showing a residential property, with all buildings and features represented.
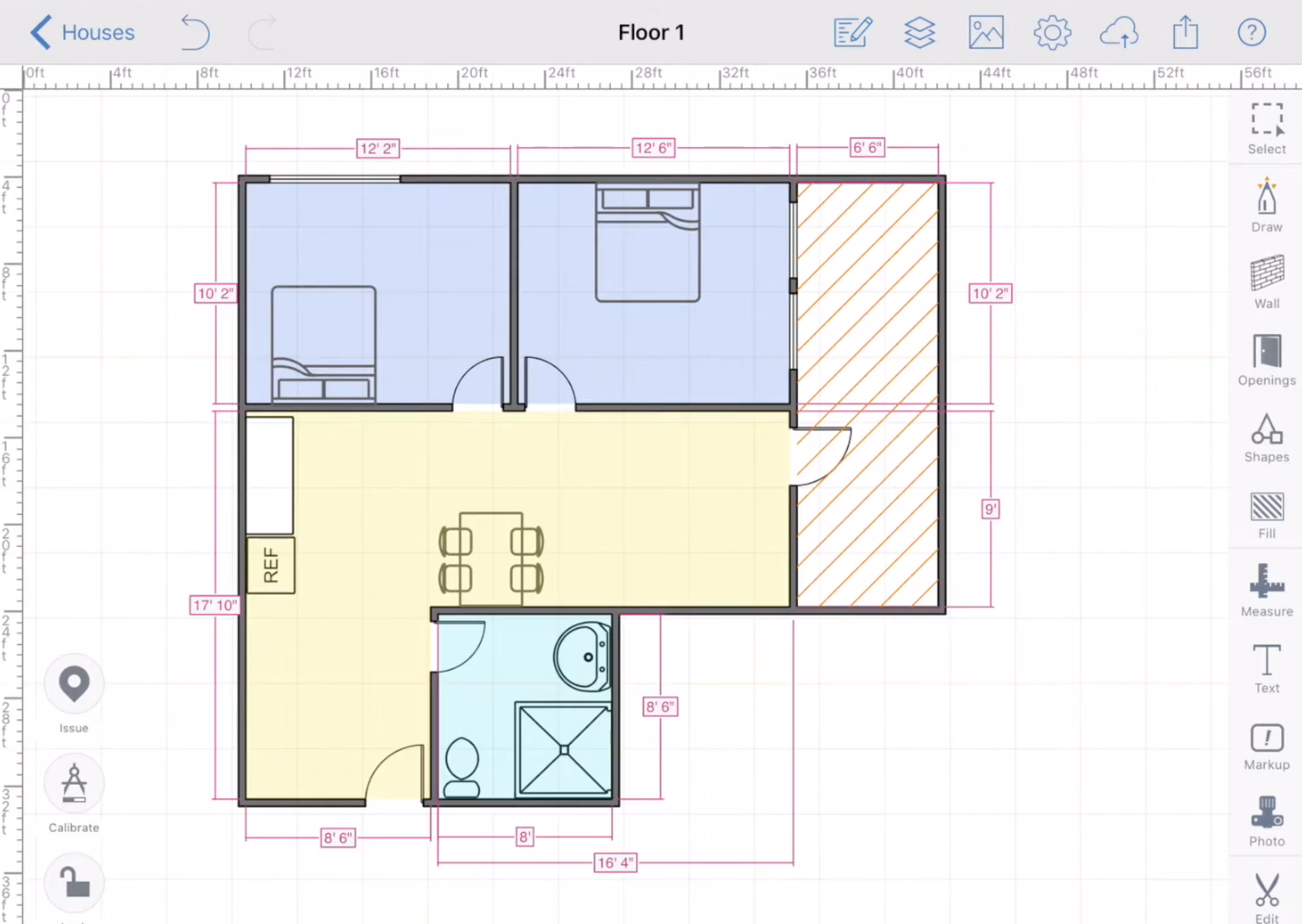
A floor plan, on the other hand, is a detailed and to-scale drawing of the inside of a residence. It depicts the arrangement of each room within a building, sometimes even including where large furniture and appliances are placed.
Essentially, a floor plan is all about what’s happening inside the walls of the home.
A floor plan showing the different rooms and features on the level.
It’s worth mentioning that most site plans will not include a floor plan, only a view of the building as it is depicted in relation to the rest of the property.
If you’re only working within the home, you probably don’t need a site plan. But if you’re making any changes to the exterior of the home or adding/taking anything away from the property, you most likely will need a site plan.
Elements of a good site plan
When looking at a site plan, there are key elements to consider. These features make plans easier to understand:
- Property lines
- Natural landscape
- Existing structures
- Setbacks
- Directions
- Notes
A legend table
Above all, a comprehensive legend table is essential to a good site plan. A legend table establishes that measurements are to scale, shows which direction the building is facing, and defines every feature shown.
An example site plan that used an aerial shot of the property as the starting point.
Types of site plan design
There are two types of site plans: 2D and 3D. Both have their pros and cons.
A 2D site plan gives you a clean and professional-looking overview of the property and its features. Most site plans are 2D aerial maps that show everything encompassed within the property. These site plans are perfect for applying for permits, renovation projects, landscape design, and property plans.
A 3D site plan is less common but gives you a full-color 3D rendering of the entire property. This makes it easier to see and understand the size and scale of the structures and smaller details like materials, plantings, and more.
Here are the methods you can use to complete a site plan yourself:
- Pen and paper
- Desktop CAD software
- Mobile drawing app
Pros and cons of design methods
Pen and paper may seem like the easiest choice. However, this method does leave room for human error and is often difficult to read (not to mention it’s incredibly time-consuming).
A better option is to use CAD software. After taking your measurements, you can then sit down at your computer and the software will aid you in creating an accurate and readable design. However, desktop CAD software can be expensive and take years to master. It's also clunky and not easy to use when at the site.
Site plan drawing app
For ultimate ease of use, we would recommend using a mobile CAD app. Similar to the desktop software, a mobile CAD app will assist you in creating an accurate design but with the added bonus of being able to do it in real-time while making your measurements.
With ArcSite, users can also add location-based photos for ultimate readability. And your entire design is easily uploaded to the Cloud for easy access and collaboration! Get started with our mobile CAD app now with our 14-day free trial.

A site plan in ArcSite, with each blue camera representing location-based photos
ArcSite for site planning professionals
Site plans are a great tool for designing and laying out your work. Being able to identify the existing structures and features of a site makes planning your work faster and easier.
When creating your own site plan, ArcSite can help you to quickly create a precise and professional-looking design without leaving the site.
Request a demo of ArcSite today!